oferta nr 0701500
360 000 zł4280.62 zł / m2
Miejscowość: Koszalin
Osiedle: Lechitów
Województwo: Zachodniopomorskie
Powierzchnia: 84.10 m2
Powierzchnia działki: 247.00 m2
Ilość kondygnacji: 1
Ilość pokoi: 2
Standard: Bardzo dobry
Do sprzedaży parter domu w zabudowie bliźniaczej z działką ogrodowo - warzywną.
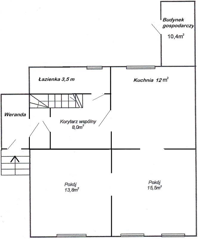
Lokal składa się z dwóch pokoi o pow.15,5m2 i 13,8m2 , kuchni o pow. 12m2 oraz łazienki o pow. 3,5m2 .
Mieszkanie jest po remoncie. Nowe podłogi panele, okna pcv, W kuchni kuchenka , zlew, piec gazowy.
Ogrzewanie i ciepła woda z pieca gazowego.
Do mieszkania należą 2 piwnice o łącznej pow. 28,9m2 oraz przyległy budynek gospodarczy o pow. 10,4m2ze stryszkiem, który pełni funkcję pokoju letniego. Wejście do budynku gospodarczego od ogrodu.
Wspólne wejście do lokali mieszkalnych przez werandę.
Parkowanie pojazdów samochodowych na terenie ogrodzonej, zamykanej bramą posesji.
Udział w nieruchomości gruntowej i budynku 569/1000.
Wraz z mieszkaniem sprzedawana jest niezależna własnościowa działka ogrodowo - warzywna o pow. 247m2 z licznymi
drzewami owocowymi i krzewami.
Na terenie ogrodu wydzielono miejsce do wypoczynku i rekreacji.
Oglądanie w obecności Pośrednika . Licencja 880.
Zapraszamy!
Lokal składa się z dwóch pokoi o pow.15,5m2 i 13,8m2 , kuchni o pow. 12m2 oraz łazienki o pow. 3,5m2 .
Mieszkanie jest po remoncie. Nowe podłogi panele, okna pcv, W kuchni kuchenka , zlew, piec gazowy.
Ogrzewanie i ciepła woda z pieca gazowego.
Do mieszkania należą 2 piwnice o łącznej pow. 28,9m2 oraz przyległy budynek gospodarczy o pow. 10,4m2ze stryszkiem, który pełni funkcję pokoju letniego. Wejście do budynku gospodarczego od ogrodu.
Wspólne wejście do lokali mieszkalnych przez werandę.
Parkowanie pojazdów samochodowych na terenie ogrodzonej, zamykanej bramą posesji.
Udział w nieruchomości gruntowej i budynku 569/1000.
Wraz z mieszkaniem sprzedawana jest niezależna własnościowa działka ogrodowo - warzywna o pow. 247m2 z licznymi
drzewami owocowymi i krzewami.
Na terenie ogrodu wydzielono miejsce do wypoczynku i rekreacji.
Oglądanie w obecności Pośrednika . Licencja 880.
Zapraszamy!
