oferta nr 700501
6 814 275 zł195.00 zł / m2
Miejscowość: Koszalin
Województwo: Zachodniopomorskie
Przedmiotem sprzedaży są działki, które zlokalizowane są dokładnie vis a vis Panattoni w Koszalinie, przy ul. Wołyńskiej. Oferta na wyłączność.
Dojazd do ulicy Wołyńskiej od ulicy Lechickiej i Szczecińskiej.
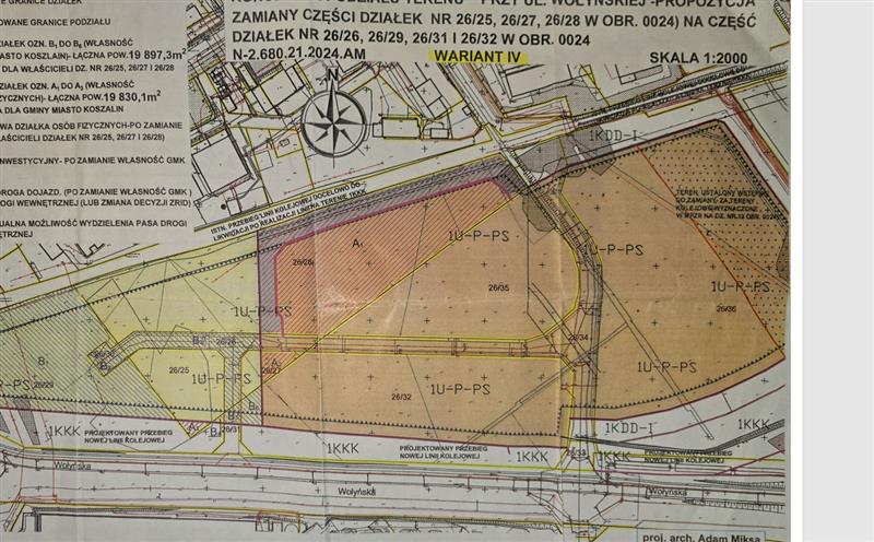
Trzy działki stanowią pow. całkowitą 3,4945 ha. Działki o nr 26/25, 26/27 i 26/28 obręb 0024, Koszalin ul. Wołyńska. Trwa procedura zamiany działek z miastem Koszalin, będą nadane nowe numery działek. Uchwała nr LXI/873/2023 dotycząca planu zagosp. przestrzennego symbol 1U-P-PS- tereny usług, produkcji, składów i magazynów.
Uzbrojenie w drodze: media: woda, prąd, kanalizacja w drodze.
Obecnie trwają prace związane z projektowaniem nowych dróg dojazdowych.
Działki posiadają dostęp do drogi publicznej.
Cena 195 zł/m2 brutto.
S11/S6 obwodnica Koszalina i Sianowa wraz z odcinkiem S11 Bielice - Koszalin Zachód.
Działka bez nasadzeń w postaci drzew, obecnie porośnięta krzewami.
W wypisie z rejestru gruntów: RIIIa, RIIIb, RIVa, N.
Prezentacja nieruchomości z pośrednikiem, wszelkie informacje i dokumenty dostępne u pośrednika. Rezerwacja działki gruntu jedynie po uzgodnieniu warunków przyszłej umowy i akceptacji przez właściciela.
Dojazd do ulicy Wołyńskiej od ulicy Lechickiej i Szczecińskiej.
Trzy działki stanowią pow. całkowitą 3,4945 ha. Działki o nr 26/25, 26/27 i 26/28 obręb 0024, Koszalin ul. Wołyńska. Trwa procedura zamiany działek z miastem Koszalin, będą nadane nowe numery działek. Uchwała nr LXI/873/2023 dotycząca planu zagosp. przestrzennego symbol 1U-P-PS- tereny usług, produkcji, składów i magazynów.
Uzbrojenie w drodze: media: woda, prąd, kanalizacja w drodze.
Obecnie trwają prace związane z projektowaniem nowych dróg dojazdowych.
Działki posiadają dostęp do drogi publicznej.
Cena 195 zł/m2 brutto.
S11/S6 obwodnica Koszalina i Sianowa wraz z odcinkiem S11 Bielice - Koszalin Zachód.
Działka bez nasadzeń w postaci drzew, obecnie porośnięta krzewami.
W wypisie z rejestru gruntów: RIIIa, RIIIb, RIVa, N.
Prezentacja nieruchomości z pośrednikiem, wszelkie informacje i dokumenty dostępne u pośrednika. Rezerwacja działki gruntu jedynie po uzgodnieniu warunków przyszłej umowy i akceptacji przez właściciela.
