oferta nr 4403306
699 000 zł3646.70 zł / m2
Miejscowość: Koszalin
Województwo: Zachodniopomorskie
Pow. użytkowa: 191.68 m2
Ilość kondygnacji: 1
Standard: Do remontu
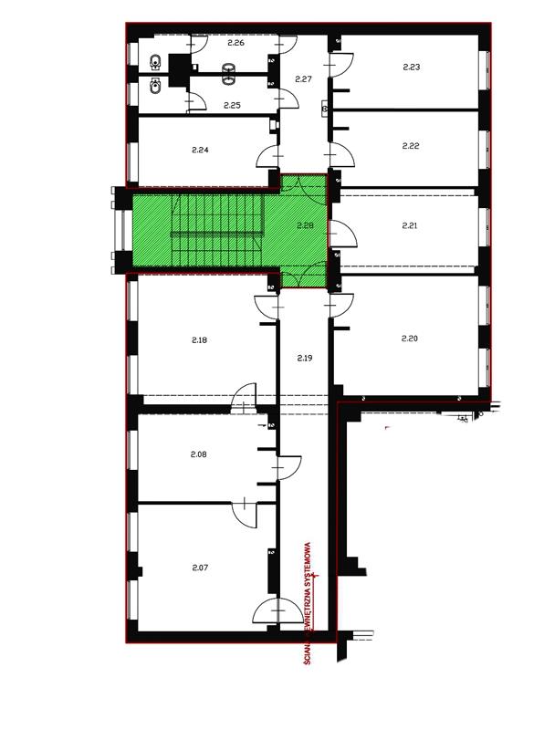
Lokal użytkowy 191,68 m2 , I piętro , Koszalin, ul. Armii Krajowej (wejście od ul. Jana z Kolna)
Świetna lokalizacja w ścisłym centrum Koszalina, tuż przy dworcu PKP/PKS, w bezpośrednim sąsiedztwie głównych arterii miasta. Lokal znajduje się na pierwszym piętrze w bocznej nawie budynku (od strony ul. Jana z Kolna), z wejściem klatką schodową bezpośrednio od dużego parkingu. Najważniejsze informacje:
Powierzchnia: 191,68 m2
8 pomieszczeń biurowo-użytkowych (9,16–23,60 m2)
2 toalety
Stan: do remontu/adaptacji
Ogrzewanie z sieci miejskiej (MEC) – instalacja do wykonania wewnątrz lokalu Idealny pod:
biuro (IT, marketing, księgowość, projektowanie)
kancelarię lub siedzibę firmy
podział na małe mieszkania inwestycyjne
adaptację pod mini hostel lub działalność najmu krótkoterminowego Atuty lokalizacji:
ścisłe centrum, 50 m od dworca PKP/PKS
bezpośrednie wejście z ulicy i parking przy wejściu
komunikacja miejska, usługi, urzędy i gastronomia w zasięgu 2–3 minut pieszo
bardzo dobra ekspozycja i widoczność od strony ul. Jana z Kolna Dodatkowo:
Transakcja zwolniona z podatku VAT
Możliwość zakupu podobnych lokali w budynku (różne powierzchnie i układy)
Budynek o konstrukcji żelbetowo-murowanej, dawniej siedziba banku – wysoki standard konstrukcyjny
Zapraszamy na prezentację – to lokal z ogromnym potencjałem inwestycyjnym i biznesowym!
Oferta pod opieką licencjonowanego pośrednika (nr lic. 14825)
Świetna lokalizacja w ścisłym centrum Koszalina, tuż przy dworcu PKP/PKS, w bezpośrednim sąsiedztwie głównych arterii miasta. Lokal znajduje się na pierwszym piętrze w bocznej nawie budynku (od strony ul. Jana z Kolna), z wejściem klatką schodową bezpośrednio od dużego parkingu. Najważniejsze informacje:
Powierzchnia: 191,68 m2
8 pomieszczeń biurowo-użytkowych (9,16–23,60 m2)
2 toalety
Stan: do remontu/adaptacji
Ogrzewanie z sieci miejskiej (MEC) – instalacja do wykonania wewnątrz lokalu Idealny pod:
biuro (IT, marketing, księgowość, projektowanie)
kancelarię lub siedzibę firmy
podział na małe mieszkania inwestycyjne
adaptację pod mini hostel lub działalność najmu krótkoterminowego Atuty lokalizacji:
ścisłe centrum, 50 m od dworca PKP/PKS
bezpośrednie wejście z ulicy i parking przy wejściu
komunikacja miejska, usługi, urzędy i gastronomia w zasięgu 2–3 minut pieszo
bardzo dobra ekspozycja i widoczność od strony ul. Jana z Kolna Dodatkowo:
Transakcja zwolniona z podatku VAT
Możliwość zakupu podobnych lokali w budynku (różne powierzchnie i układy)
Budynek o konstrukcji żelbetowo-murowanej, dawniej siedziba banku – wysoki standard konstrukcyjny
Zapraszamy na prezentację – to lokal z ogromnym potencjałem inwestycyjnym i biznesowym!
Oferta pod opieką licencjonowanego pośrednika (nr lic. 14825)
Ostatnio oglądane:
